L'art de vivre son intérieur
Nous sommes là pour vous aider à découvrir l'atmosphère qui émane de votre personnalité et de votre manière de vivre. Du neuf à la rénovation, nous prenons en charge votre projet de A à Z pour que votre seule pensée soit celle de retrouver un intérieur qui vous correspond. Tout un art (qui vous attend) !


"


Nos Services en 5 étapes
Nous offrons des solutions personnalisées pour vos projets d'aménagement, de rénovation, de construction et de décoration intérieure. On vous accompagne de A à Z ou bien juste de A à A !


Découverte du projet
Un premier RDV gratuit pour analyser vos besoins et vous présenter nos services.




Avant projet sommaire
Avant projet définitif
Après acceptation de notre devis, nous vous présentons un avant projet qui s'affinera au fur et à mesure de nos RDV.
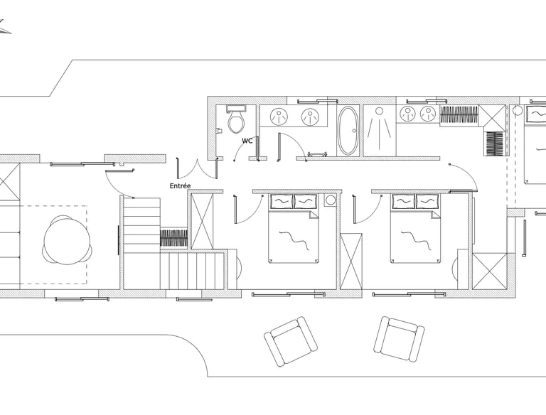
Une fois la phase de conception finalisée, nous réalisons les documents/plans nécessaires à l'exécution (DP, permis, plans techniques 2D, rendus réalistes 3D, home staging, etc.)


Préparation du chantier
Nous pouvons vous aider dans la sélection des meilleurs artisans pour mener à bien votre projet.




Suivi du chantier &
installation du mobilier
Bienvenue chez vous !
Nous agissons en qualité de maitre d'oeuvre pour suivre et gérer votre chantier, comprenant l'installation du mobilier si besoin.


